全国免费电话:400-777-5599
E-MAIL:canatal@canatal.com.cn 传真:025-84916604
扬州公安局政法大数据中心——冷源制备中心
- 分类:事业机关
- 作者:
- 来源:
- 发布时间:2021-05-12 15:00
- 访问量:
【概要描述】本项目位于扬州市邗江区,建筑使用总面积:约4550平方米,共三层,一层、二层为数据中心,三层为技术保障用房区域。 数据中心终期可安装IT设备功耗为2180.55kW,变配电室发热量为145.92kW,电池室发热量为:24.53KW,接入间及楼层弱电间为:6.42KW,新风负荷为138.6KW,辅助区域发热量为:134.27KW,则通过逐项逐时的冷负荷计算得通信机房夏季冷负荷2630.3kW,考虑1.07冗余系数,设计总容量2813.6kW。 整个数据中心根据GB50174中A级机房的标准进行建设,确保运行安全可靠。同时根据规范要求,对冷源与末端均采用了N+X形式的备份,X≥1;其中冷源系统即智能冷站采用了2+1形式备份,两台主用一台作为备用。
扬州公安局政法大数据中心——冷源制备中心
【概要描述】本项目位于扬州市邗江区,建筑使用总面积:约4550平方米,共三层,一层、二层为数据中心,三层为技术保障用房区域。
数据中心终期可安装IT设备功耗为2180.55kW,变配电室发热量为145.92kW,电池室发热量为:24.53KW,接入间及楼层弱电间为:6.42KW,新风负荷为138.6KW,辅助区域发热量为:134.27KW,则通过逐项逐时的冷负荷计算得通信机房夏季冷负荷2630.3kW,考虑1.07冗余系数,设计总容量2813.6kW。
整个数据中心根据GB50174中A级机房的标准进行建设,确保运行安全可靠。同时根据规范要求,对冷源与末端均采用了N+X形式的备份,X≥1;其中冷源系统即智能冷站采用了2+1形式备份,两台主用一台作为备用。
- 分类:事业机关
- 作者:
- 来源:
- 发布时间:2021-05-12 15:00
- 访问量:
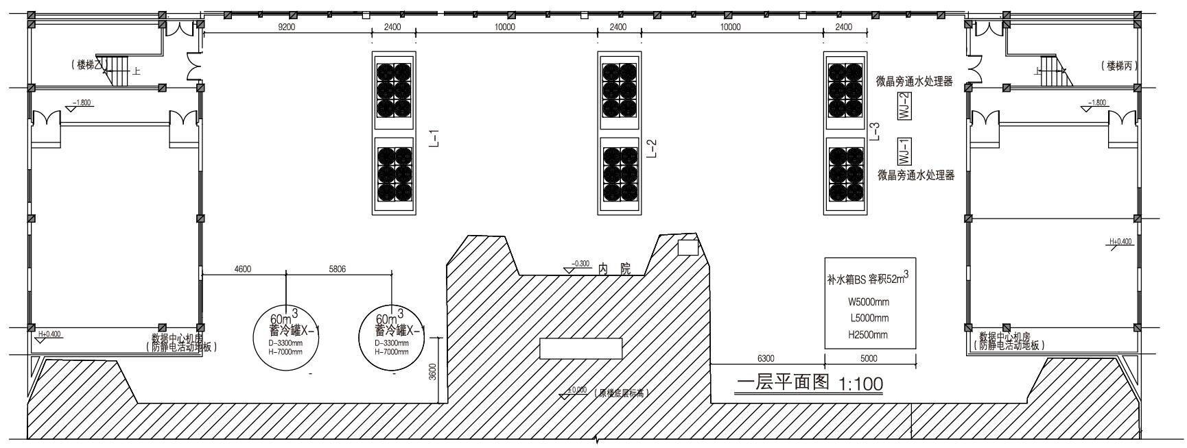
1、项目概况
本项目位于扬州市邗江区,建筑使用总面积:约4550平方米,共三层,一层、二层为数据中心,三层为技术保障用房区域。
数据中心终期可安装IT设备功耗为2180.55kW,变配电室发热量为145.92kW,电池室发热量为:24.53KW,接入间及楼层弱电间为:6.42KW,新风负荷为138.6KW,辅助区域发热量为:134.27KW,则通过逐项逐时的冷负荷计算得通信机房夏季冷负荷2630.3kW,考虑1.07冗余系数,设计总容量2813.6kW。
整个数据中心根据GB50174中A级机房的标准进行建设,确保运行安全可靠。同时根据规范要求,对冷源与末端均采用了N+X形式的备份,X≥1;其中冷源系统即智能冷站采用了2+1形式备份,两台主用一台作为备用。
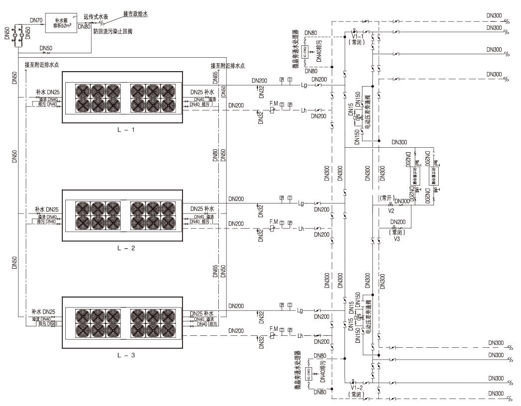
下图为冷源系统平面布置与原理图。

冷源系统平面布置图

冷源系统原理图
2、暖通系统介绍
补水箱
补水箱外形尺寸为5m*5m*2.5m,总补水量为52m³,满足停水后5小时内的用水量。根据GB50174中对于A级机房的要求,冷却水储水量应满足12小时用水,但以12小时储水量进行补水箱的设计体积过大,导致现场无处安置;但除上述要求外,规范中还指出当周围有应急水源可以供应,可按照应急水车抵达现场的时间对补水装置设计。结合当时与客户沟通的结果,最终确定满足5小时内的用水量即可。

补水箱与补水泵
智能冷站
单套智能冷站在冷冻水温度14/20℃,冷却水温度32/37℃的工况下,制冷量可达400RT。并且每台冷站均集成有自然冷源功能,在采用闭式冷却塔的情况下具有两种工作模式;一种是环境温度较高时开启的压缩机模式:冷却塔产生的冷却水进入冷水机组,与末端的冷冻水进行换热,实现冷负荷的需求;另一种是环境温度较低时的自然冷源模式:此时可以直接由冷却塔产生的冷却水与末端换热,此时冷却水泵与压缩机停止运行,降低了系统能耗。
上文提到的自然冷源功能是数据中心行业冷源设备的一大特点;与一般民用空调系统不同:IT设备全年发热,意味着数据中心机房需要全年供冷,无需制热功能。此时当室外环境温度较低时,即可利用自然冷源与循环水换热制冷,给末端机房进行降温,大幅度降低数据中心能源消耗量。
冷却塔
设计流量:400m³/小时,进出水温度:37℃/32℃,湿球温度: 28℃。
冷却塔采用双模块闭式的方式,单模块均对应单台磁悬浮压缩机,单个模块可以独立工作,并实现冷却塔和冷水机组的联动控制。

闭式冷却塔
磁悬浮压缩机
磁悬浮压缩机属于离心式压缩机的一种。磁悬浮压缩机采用磁性轴承,运转时受磁力的作用,轴与轴承无接触转动,无摩擦运行,噪音较低,可以省去昂贵的减震和降噪费用。同时配置有软启动器,启动电流只有2A,对于电网无任何影响。并且还有免维护,无油运行,生命周期长等优势。采用R134a绿色环保制冷剂,能效高,全生命周期成本低。
而与传统压缩机相比,磁悬浮压缩机其体积只有传统压缩机的50%左右,重量约为传统压缩机的20%。
集成化理念
除了冷水机组外,智能冷站还集成有循环水泵、定压补水装置、水处理装置、配电柜等设备。通过将单个系统模块化成产品,在工厂进行预制化生产,包括内部管路、阀门的安装,减少了现场施工环节,缩短安装周期。并且便于运输、快速部署以及后期的扩容。
每套集成冷站都是一个单独的模块,互不干涉,一台出现故障时将备用的启动也可使整套系统正常进行运行。
定压补水装置
作用:使空调水系统压力设定点的压力恒定;保证系统水与空气隔离,确保成为闭式循环水系统。
内含两套定压罐,冷却水部分总容积0.15m³,冷冻水部分总容积0.4m³;两套变频补水泵,一用一备,设计流量2m³/h,扬程15m。

冷冻水定压罐(左)与冷却水定压罐(右)
软水装置
处理水流量为2m³/h。
全自动软化水装置制备软化水,软化水供给冷冻水补水;经软化水装置处理后,使得出水硬度、悬浮物、PH值、水中溶解氧等参数能够满足要求。

图:冷冻与冷却水泵
变频泵
本项目采用一次泵变流量系统,可根据末端负荷情况调整水泵运行台数和频率,以节省水泵功耗。
冷冻水循环泵:流量:260m3/h,扬程:34m,
冷却水循环泵:流量:400m3/h,扬程:22m。

冷冻与冷却水泵
蓄冷罐
两套蓄冷罐,单台蓄冷容积:60m³。
由于数据中心的特点,当发生停电时,如果没有应急的后备冷源,机房内温度会在短时间内快速上升,致使IT设备无法正常运行,造成巨大的损失。因此大多数的数据中心配置有蓄冷罐,除了应急蓄冷,还可以进行调蓄蓄冷,避免冷水机组长期低负荷运行和频繁启停。
根据GB50174的要求,采用水蓄冷的方式进行蓄冷,A级机房蓄冷时间为15min。15min内柴油发电机一般已经启动,可以确保冷源系统的正常供电,因而不用进行更长时间的蓄冷。

蓄冷罐
扫二维码用手机看